Jolles House

London E3 3YG, London, E3 3YG

Flat 2 1
Availability
Sale under offer
Share
25%
Share value
£118,750
Minimum deposit
£11,875

Full market value

£475,000

Key Features

  • Two double bedrooms
  • Spacious open-plan reception
  • Contemporary kitchen with integrated appliances
  • Secure gated development
  • Excellent transport links (Bow Road & Mile End stations)
  • Close to Victoria Park and Roman Road Market

Overview

Set within the sought-after Jolles House development in Bow, this well-appointed two-bedroom ground floor apartment offers a rare opportunity to enjoy modern living with private outdoor space at both the front and rear.

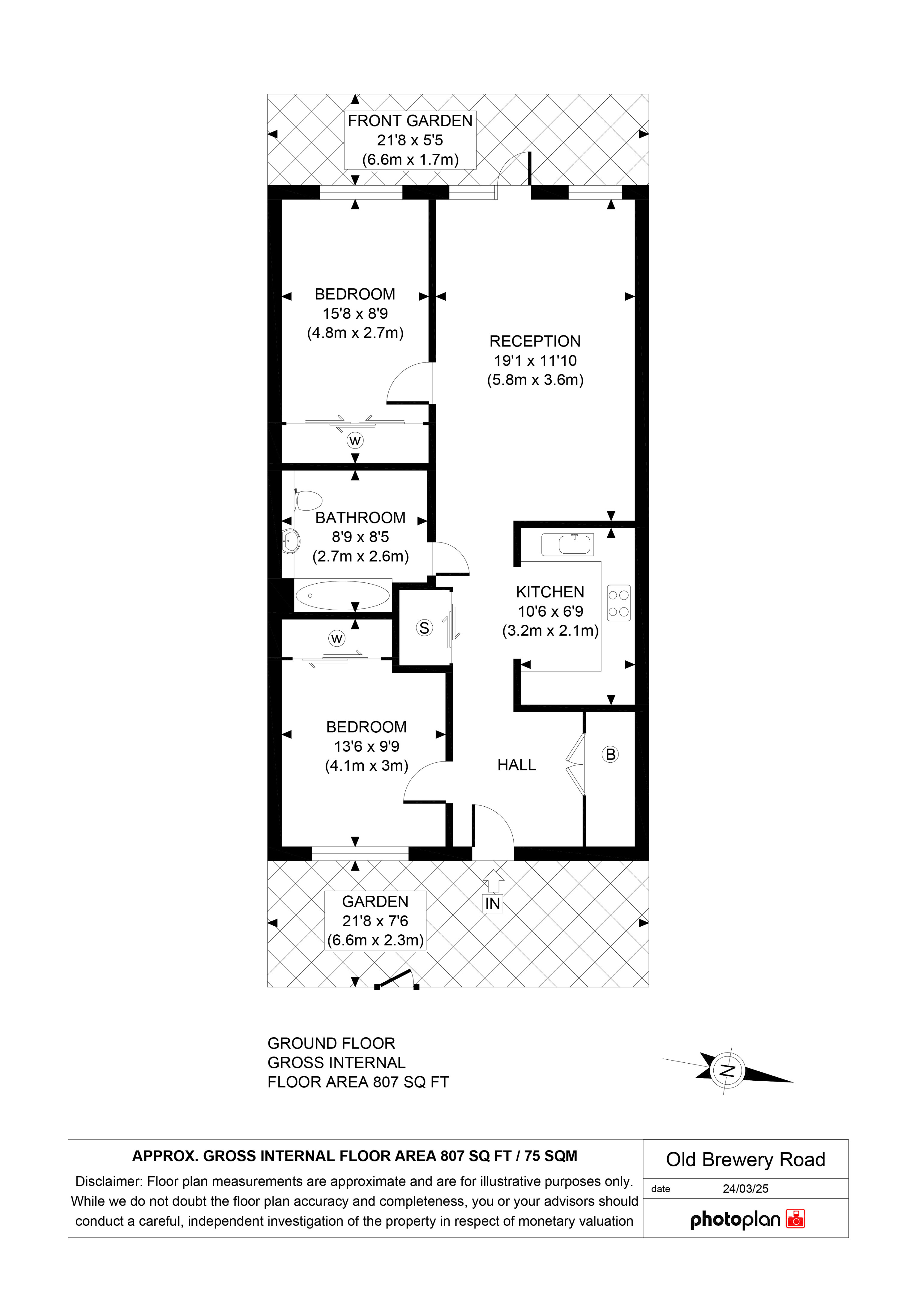
Spanning approximately 807 sq ft, the flat comprises a bright and spacious open-plan reception room, a sleek fully fitted kitchen, two generously sized double bedrooms, and a stylish contemporary bathroom. The main living area opens directly onto a private rear garden - perfect for relaxing, entertaining or family life - while the second bedroom benefits from access to a private front garden.

Both bedrooms are well proportioned and offer flexibility for home working or additional storage. The bathroom features modern fittings, a full-sized bath with overhead shower, and a large mirror with built-in shelf.

Situated within a modern, secure, and well-maintained development, residents benefit from fobbed access, bike storage and a welcoming community atmosphere.

Ideally located within walking distance of Bow Road (District and Hammersmith & City) and Mile End (Central Line) stations, providing excellent links into The City, Canary Wharf and Central London. The green open spaces of Victoria Park and Regent's Canal are nearby, along with the vibrant shops, cafes and markets of Roman Road.

Scheme

Shared Ownership

Tenure

Leasehold

Remaining lease

120 years

EPC

86

View floorplan

Pricing and Availability

Type Bedrooms Full Market Value Share % Share price Monthly Rent Monthly Service Charge Availability
Flat 2 £475,000 25% £118,750 £898 £162 Sale under offer

Other homes

Haddington Lodge

Haddington Lodge, Knapp Rd, London, E3 4BP

2 1

Share value

£239,250

Share

55%

Full price

£435,000

William Cotton Court

London E3 4QA, London, E3 4QA

1 1

Share value

£92,500

Share

25%

Full price

£370,000

Park View Court, 215 Devons Road

Park View Court, London, E3 3AN

1 1

Share value

£71,250

Share

25%

Full price

£285,000

The Beacon Bow - 101 Estelle House

London, Towler Hamlets, London, E3 3ZZ

1 1

Share value

£96,250

Share

25%

Full price

£385,000