46 Lakeside Rise

Askern, Doncaster, Doncaster, DN6 0BU

Semi-detached house 3 2
Availability
Sale under offer
Share
75%
Share value
£114,000
Minimum deposit
£11,400

Full market value

£152,000

Key Features

  • Modern three-bedroom semi-detached family home
  • Spacious living room
  • Downstairs WC, separate laundry room, and under-stair storage cupboard
  • Three well-proportioned bedrooms across the first floor
  • Driveway providing off-street parking for two cars
  • Located on a quiet residential development in Askern, Doncaster

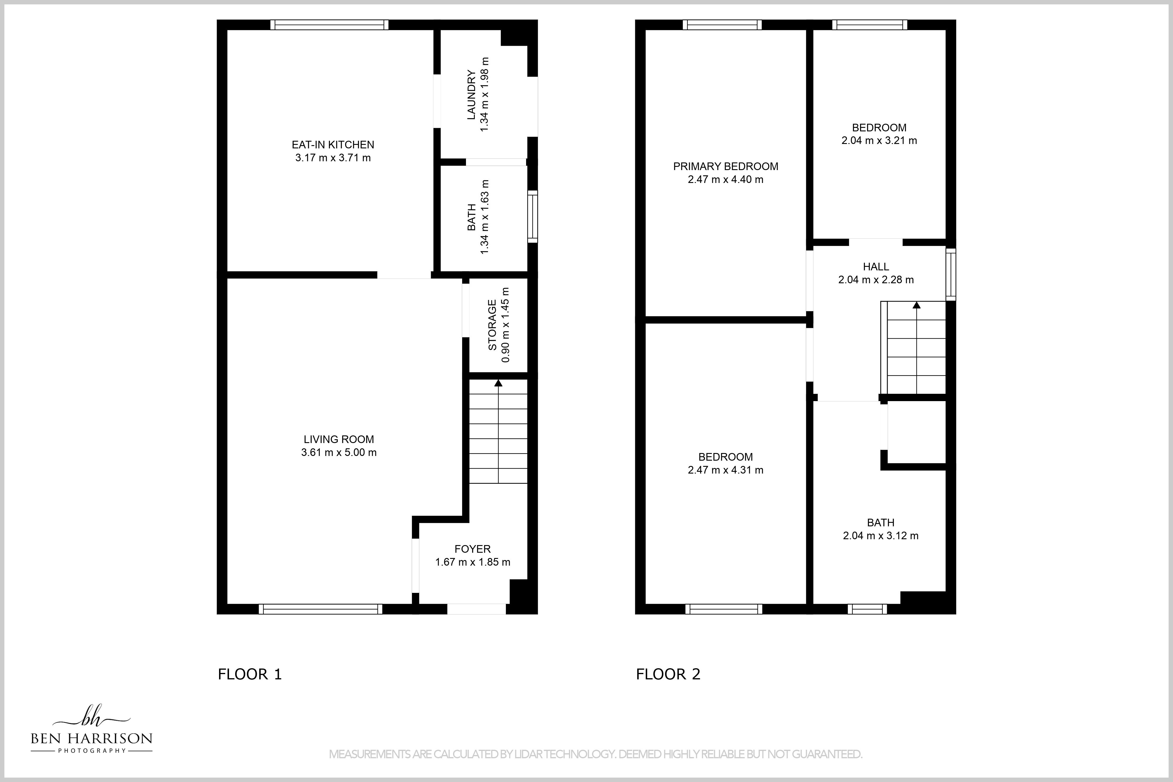
Overview

This well-presented and spacious three-bedroom, semi-detached home offers bright, modern interiors and a practical layout ideal for growing families, first-time buyers or those looking to move into a peaceful residential community in Askern, Doncaster.

The ground floor opens into a welcoming foyer which leads into a bright and generously sized living room, with ample space for relaxation. At the rear of the home, a sleek kitchen features modern cabinetry, integrated oven, hob, and space for a family dining area - making it the heart of the home. A convenient downstairs WC, large under-stair storage cupboard and a separate laundry room with side door access to the garden complete the ground floor.

Upstairs, the home comprises three well-sized bedrooms, including a spacious primary bedroom overlooking the back garden, a front bedroom of similar size and a large single bedroom to the rear. A contemporary family bathroom with bath and shower over serves all bedrooms. There is a large storage cupboard within the bathroom. A boarded attic with 3 part folding ladder provides additional storage space.

Outside, the property benefits from a fully enclosed rear garden with lawn and patio - ideal for outdoor dining, play or entertaining. A large shed is provided for storage of outdoor items, as well as a convenient outdoor tap and double power socket.

To the front, there is a smartly presented garden and driveway parking for two vehicles, with additional street parking available.

Situated on the popular Lakeside Rise development, this home is ideally located close to local schools, parks, and shops, with easy access to Doncaster town centre and major road links for commuters.

Property Features

  • Parking: Driveway
  • Outside space: Rear Garden

Scheme

Shared Ownership

Tenure

Leasehold

Remaining lease

118 years

EPC

83

View floorplan

Pricing and Availability

Type Bedrooms Full Market Value Share % Share price Monthly Rent Monthly Service Charge Availability
Semi-detached house 3 £152,000 75% £114,000 £81 £24 Sale under offer

Other homes

Potteric Edge Pear 9

Potteric Edge Pear, Doncaster, DN4 5FA

4 1

Share value

£131,980

Share

40%

Full price

£329,950

200 Edenhill Gardens, Edenthorpe

Lyndale Ave, Doncaster, DN3 2QT

3 2

Share value

£85,499

Share

30%

Full price

£284,995

3 Swift Close, Woodlands, Doncaster, DN6 7FT - Keaze

3 Swift Close, Woodlands,, Doncaster, DN6 7FT

3 2

Share value

£24,050

Share

13%

Full price

£185,000

29 Swift Close, Woodlands,

Doncaster DN6 7FT, Doncaster, DN6 7FT

4 2

Share value

£122,000

Share

40%

Full price

£305,000