1 Summerhouse Way, Abbots Langley WD5 0DY

Summerhouse Way, Abbots Langley, wd5 0dy

Semi-detached house 3 1
Availability
For sale
Share
30%
Share value
£147,000
Minimum deposit
£14,700

Full market value

£490,000

Key Features

  • 30% shared ownership opportunity
  • Three-bedroom semi-detached house
  • Spacious living and dining areas
  • Well-appointed kitchen
  • Large wrap around garden
  • Popular Abbots Langley location near amenities and schools

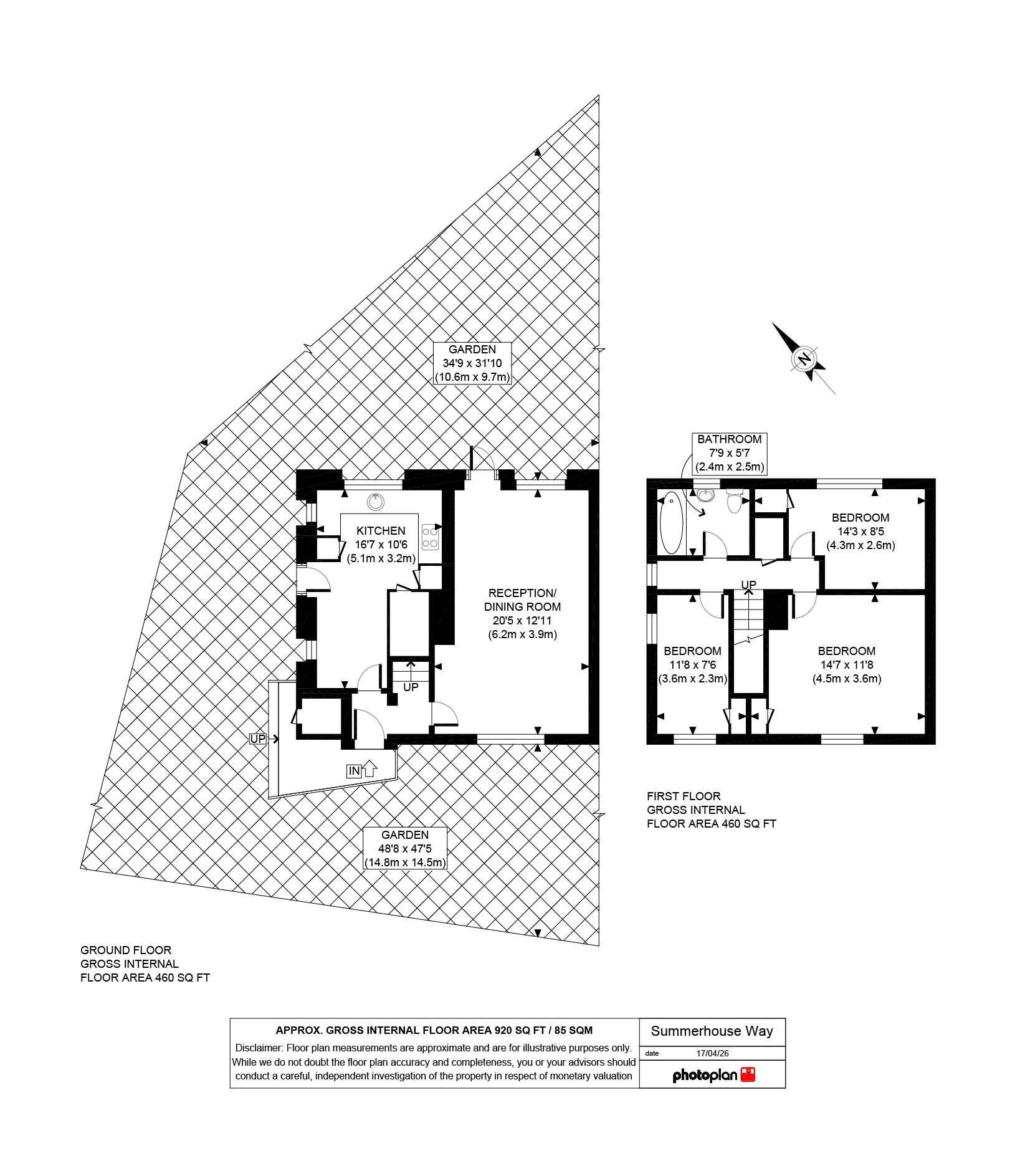
Overview

Situated in a popular residential area of Abbots Langley, this well-presented three-bedroom semi-detached house offers spacious and practical family living in a convenient WD5 location.

The property features a bright and welcoming living area, leading through to a well-appointed kitchen and dining space, ideal for both everyday living and entertaining. Upstairs, there are three well-proportioned bedrooms, offering flexibility for families, home working, or guests, along with a modern family bathroom.

Externally, the property benefits from private outdoor space, perfect for relaxing or enjoying time with family, along with off-street parking.

Offered on a 30% shared ownership basis, this is an excellent opportunity for buyers to step onto the property ladder in a desirable location. Monthly costs include rent of £931.81 and a service charge of £37.11.

Well located for local shops, schools, and transport links, as well as nearby green spaces, this home combines comfort, space, and accessibility.

Property Features

  • Outside space: Back Garden, Front Garden

Scheme

Shared Ownership

Tenure

Leasehold

Remaining lease

990 years

EPC

73

View floorplan

Pricing and Availability

Type Bedrooms Full Market Value Share % Share price Monthly Rent Monthly Service Charge Availability
Semi-detached house 3 £490,000 30% £147,000 £932 £37 For sale

Other homes

Parkside 1 Bed 25%

St Albans Rd, Watford, WD25 0LE

1 1

Share value

£78,000

Share

25%

Full price

£312,000

Parkside - 1 bed

St Albans Rd, Watford, WD25 9EH

1 1

Share value

£78,750

Share

25%

Full price

£315,000

16 Hawkes Close

Hawkes Cl, Slough, SL3 8BN

2 2

Share value

£174,000

Share

60%

Full price

£290,000